
| NU-Teck G.C. No. |
H.P. Capacity at 100 |
Pilot Bore |
Bore Max in Hub |
Bore Max in Rigid |
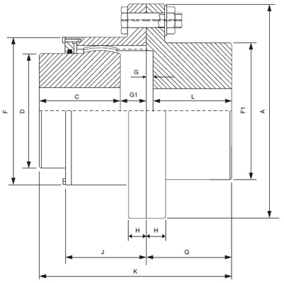
Dimension In mm | ||||||||||
| A | C | D | F | G | G1 | F1 | Q | H | J | K | |||||
| GC -102- HPR | 35 | 30 | 60 | 75 | 185 | 92 | 85 | 125 | 5 | 30 | 110 | 72.5 | 17 | 82 | 194 |
| GC -104- HPR | 119 | 50 | 90 | 110 | 250 | 105 | 130 | 175 | 7 | 35 | 160 | 107.5 | 20 | 96 | 247 |
| GC -105- HPR | 182 | 60 | 110 | 130 | 290 | 110 | 155 | 200 | 7 | 35 | 185 | 115 | 25 | 106 | 260 |